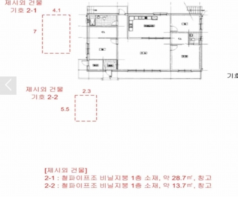
춘천시 신북읍 용산리24% | 당근 카페